Die Siedlung Waldeck befindet sich in unmittelbarer Nähe der Bushaltestelle Waldeck und nur 5 Fussminuten vom Bahnhof Ostermundigen entfernt. Öffentliche Schulen und Kindergärten befinden sich in der Nähe; ebenso Einkaufsmöglichkeiten und die Post. Die Siedlung zeichnet sich durch grosszügige Grünflächen zwischen den Häusern und Abenteuer-Spielplätze aus
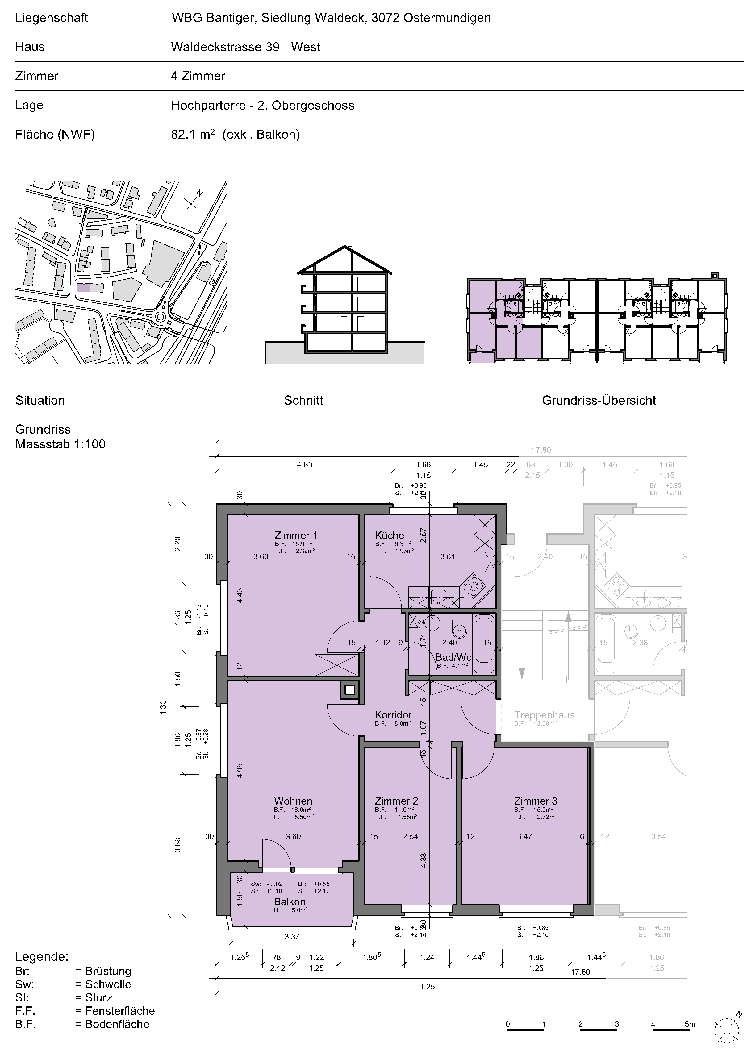
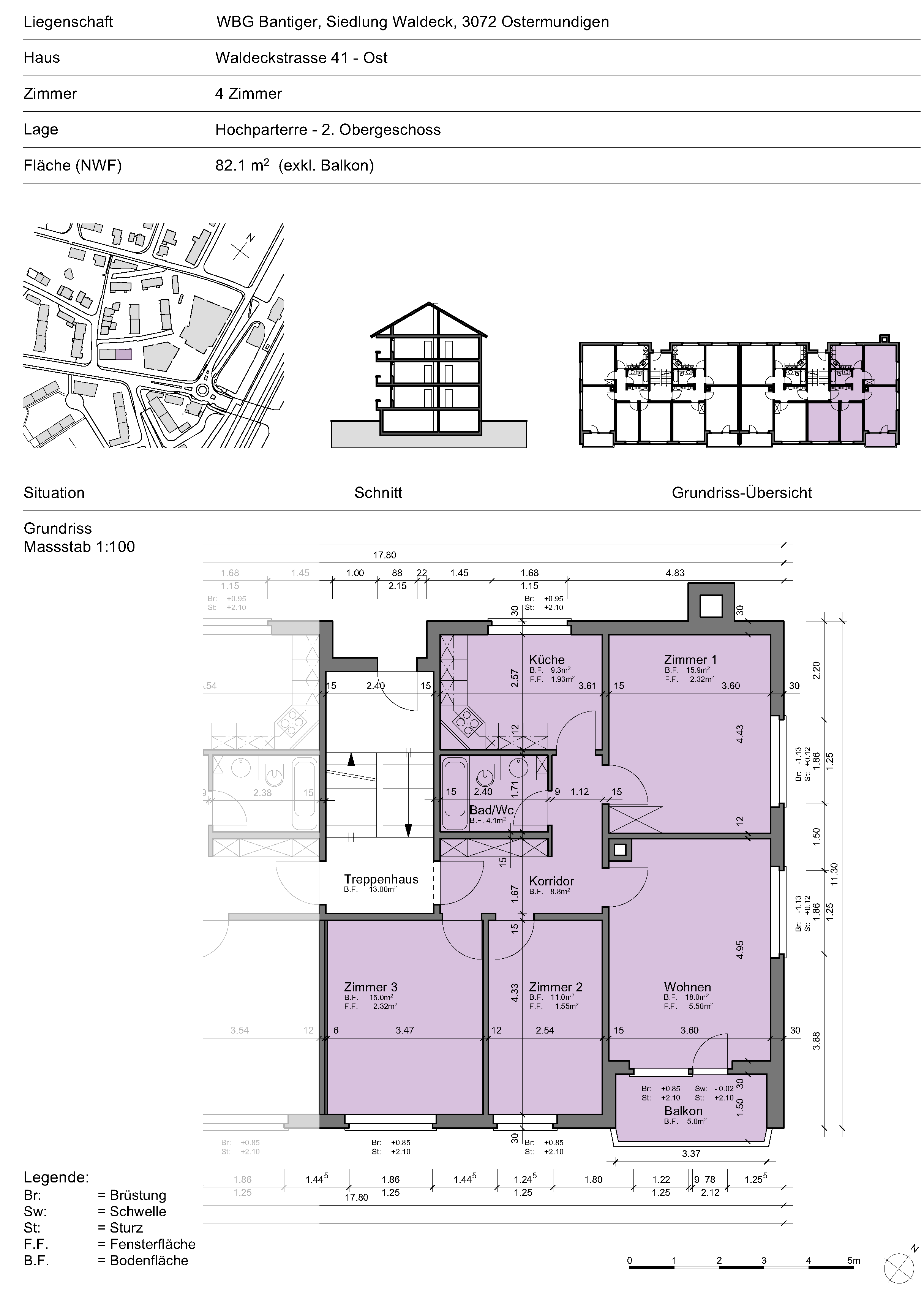
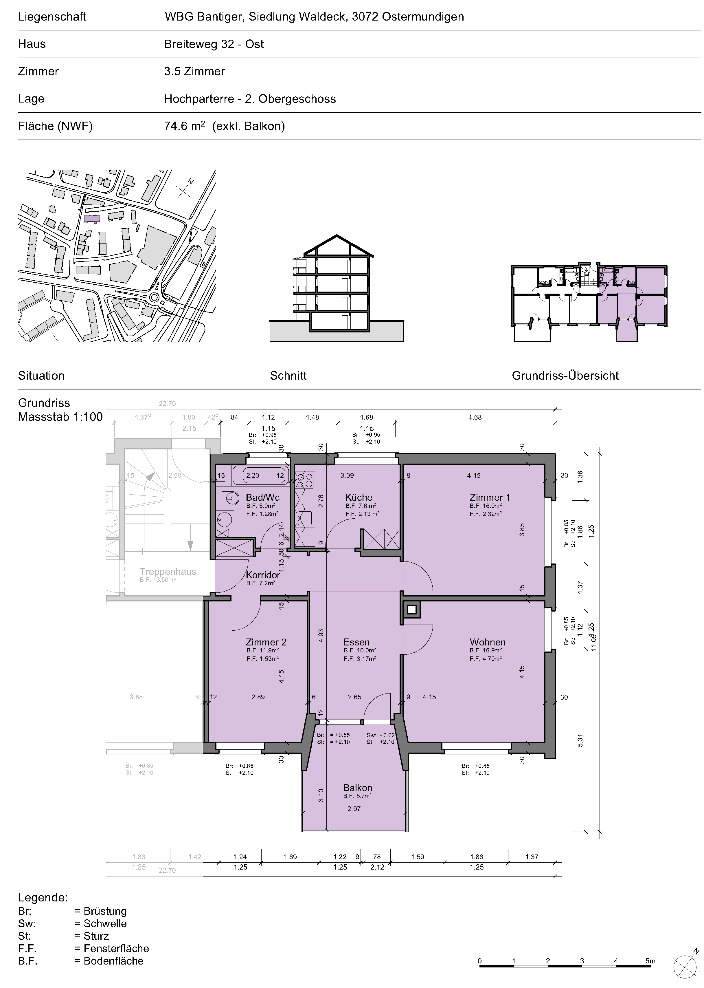
In den folgenden Abschnitten können Sie die Grundrisse (Pläne) der einzelnen Wohnungen ansehen und wenn gewünscht als PDF herunterladen:
GARAGENPLATZ
Auto: CHF 120.-
OFFENPLATZ
Auto: CHF 50.-