Die Siedlung Rüti befindet sich auf einem Hügel in unmittelbarer Nähe des Waldes. Eine eigene Schulanlage gehört ebenso zum Rütiquartier wie der neue Sportplatz, die Robinson-Spielplätze und die Bushaltestelle. Sie sind in 6 Minuten mit dem Bus am Bahnhof Ostermundigen. Auch ein Restaurant ist vorhanden
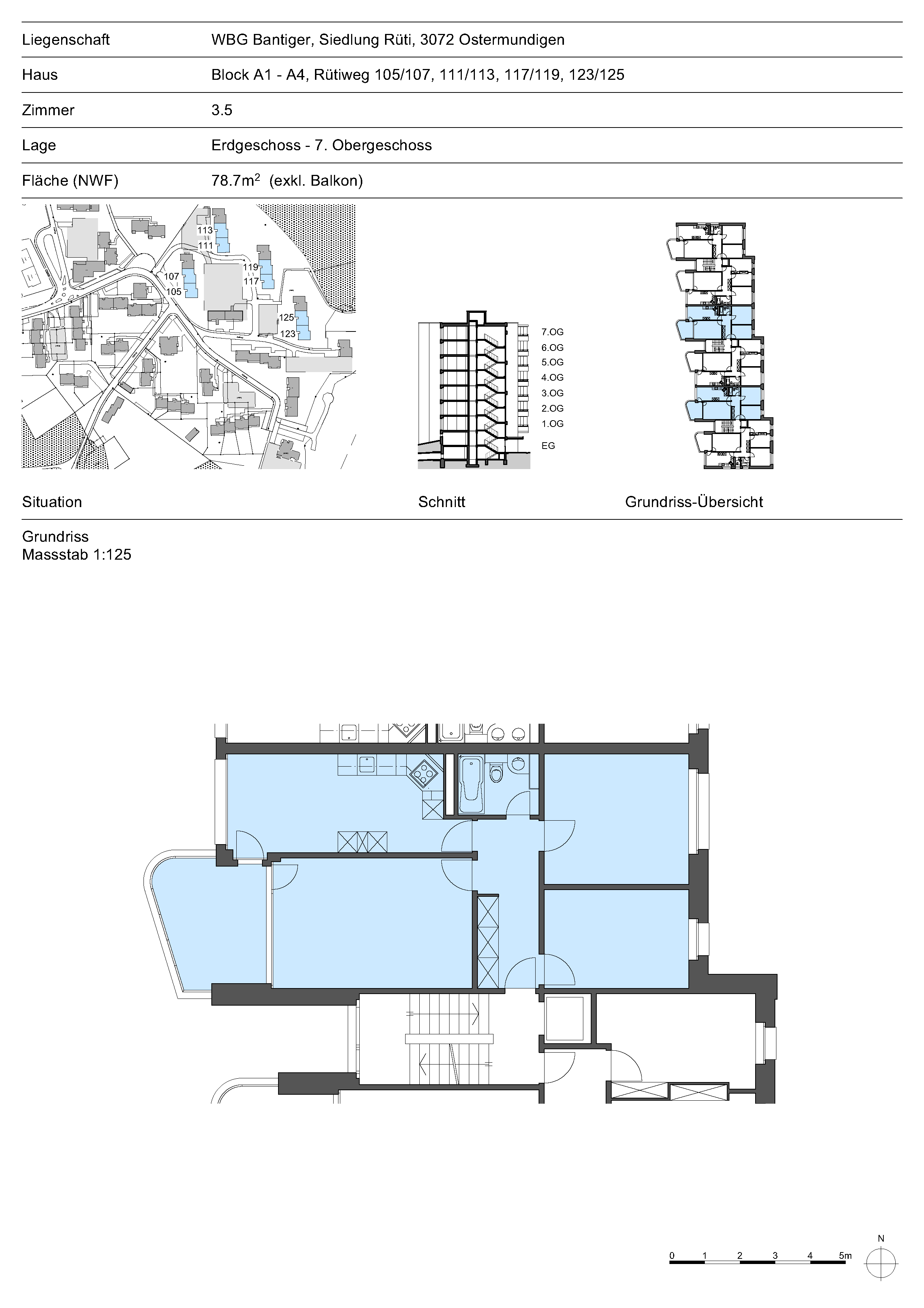
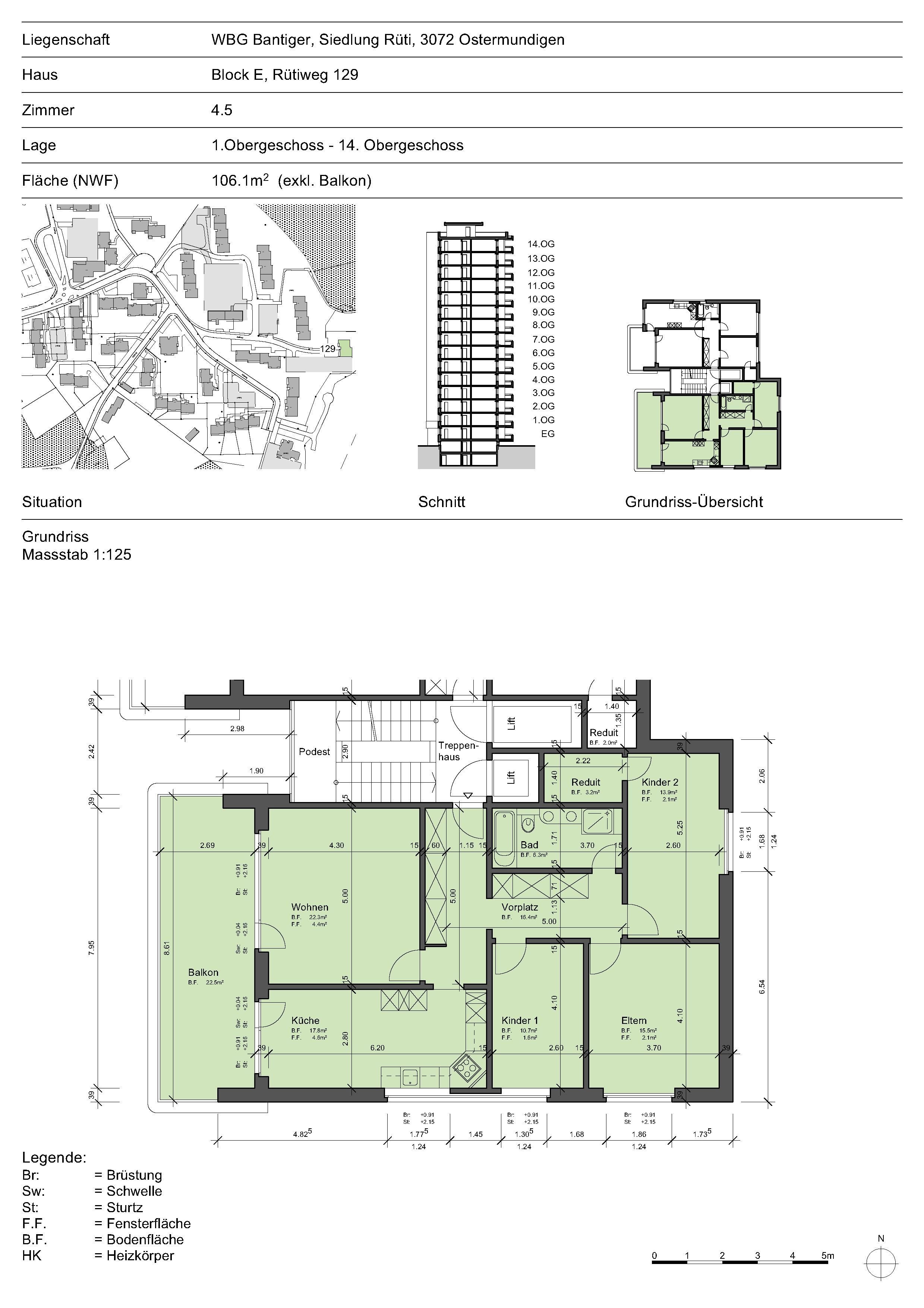
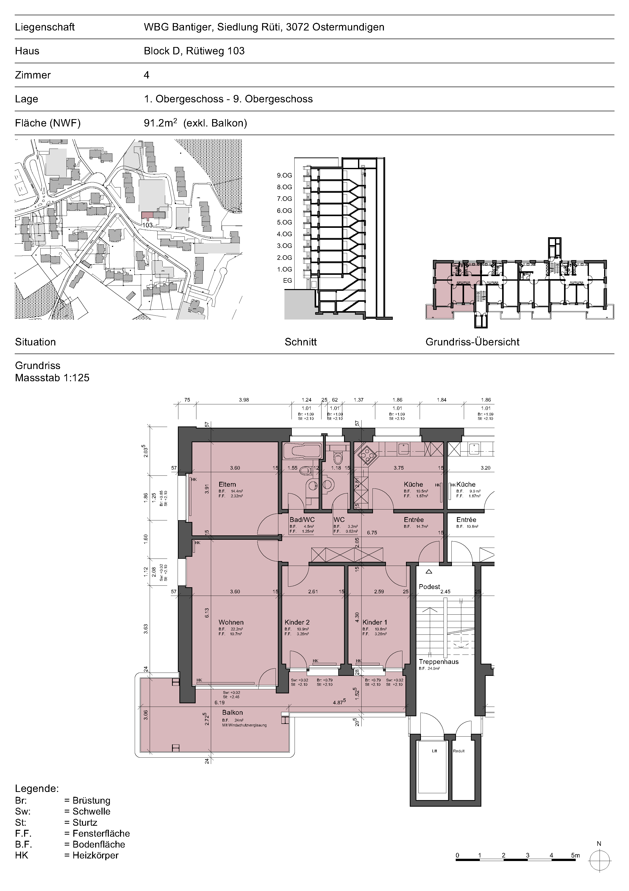
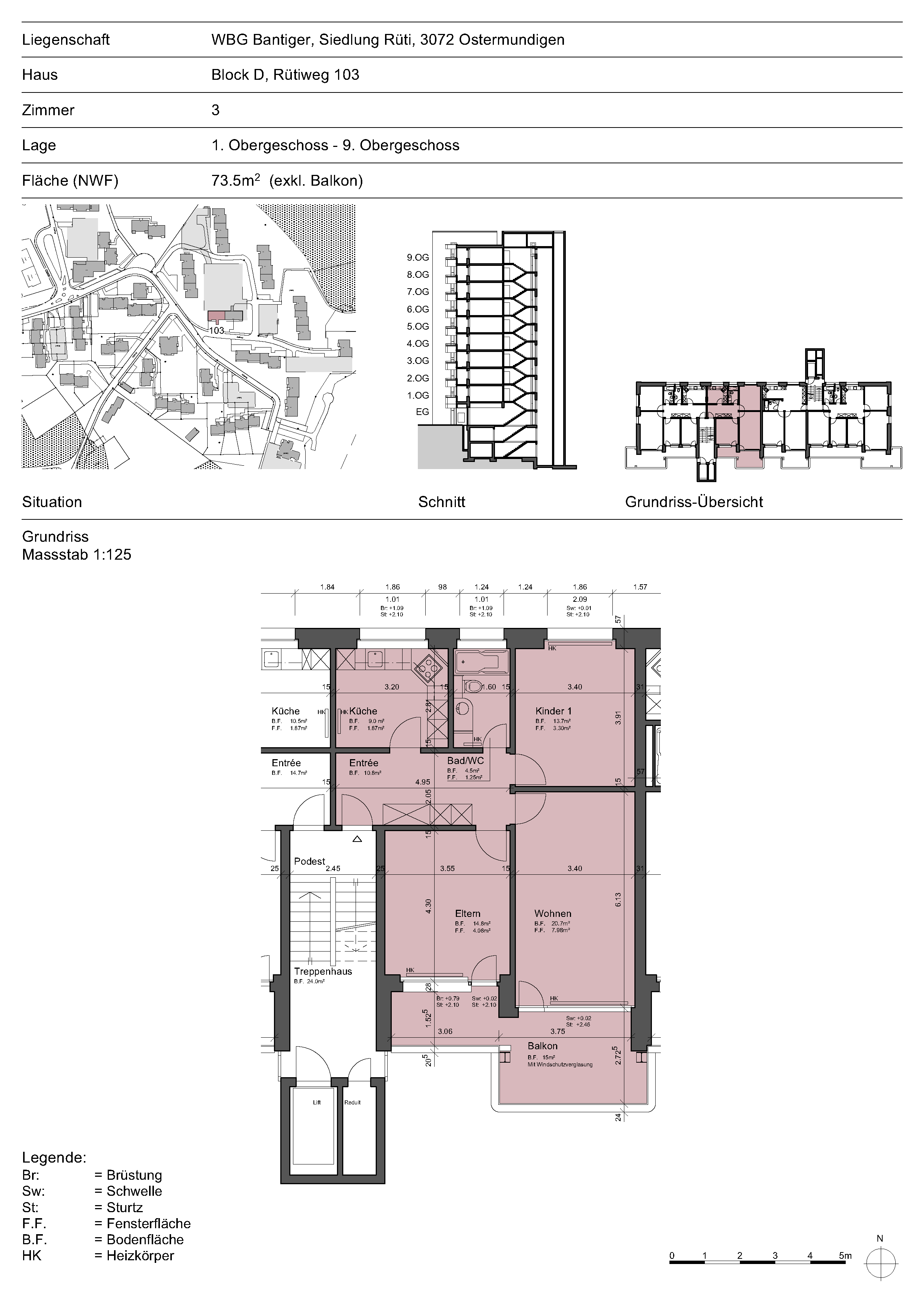
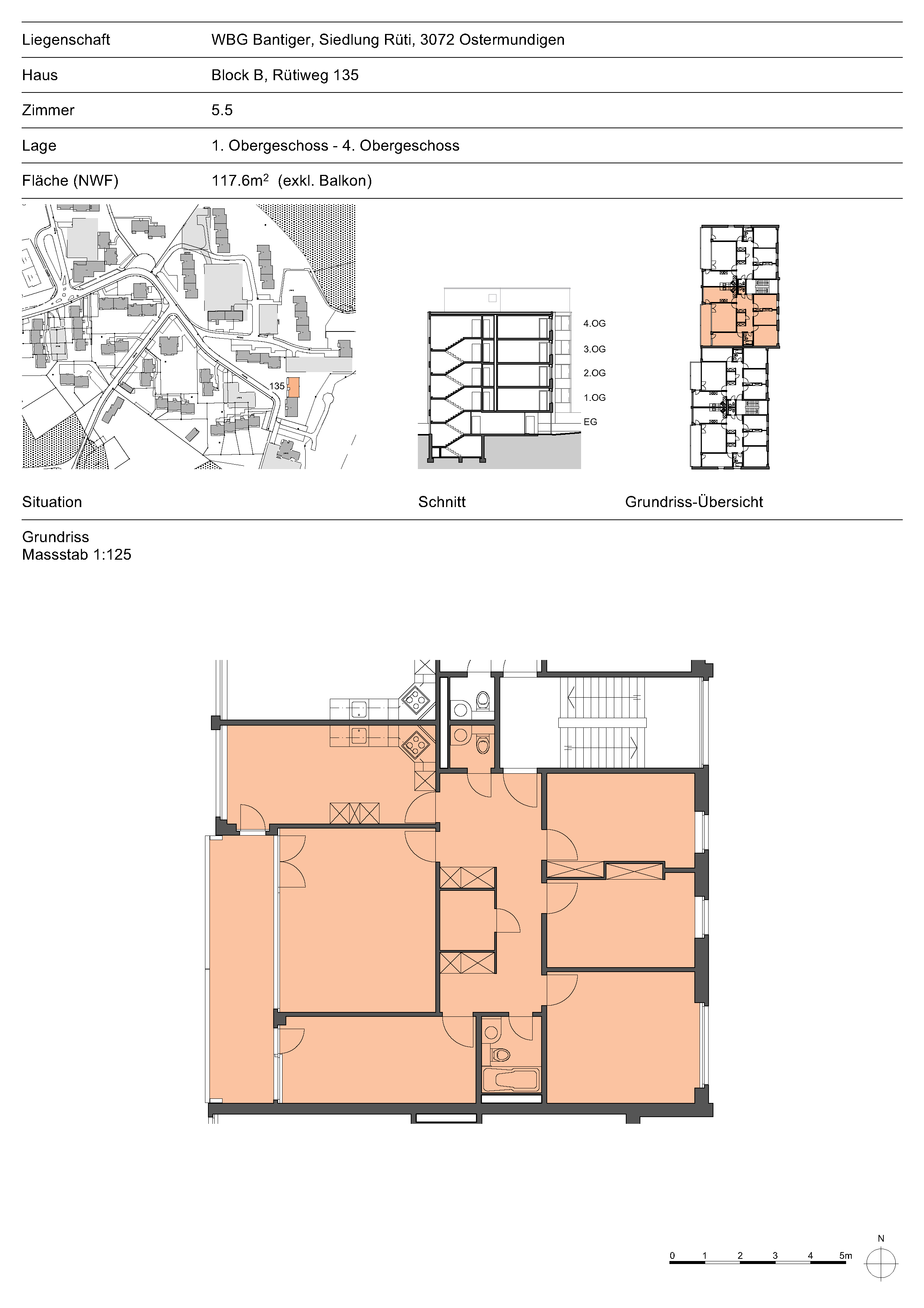
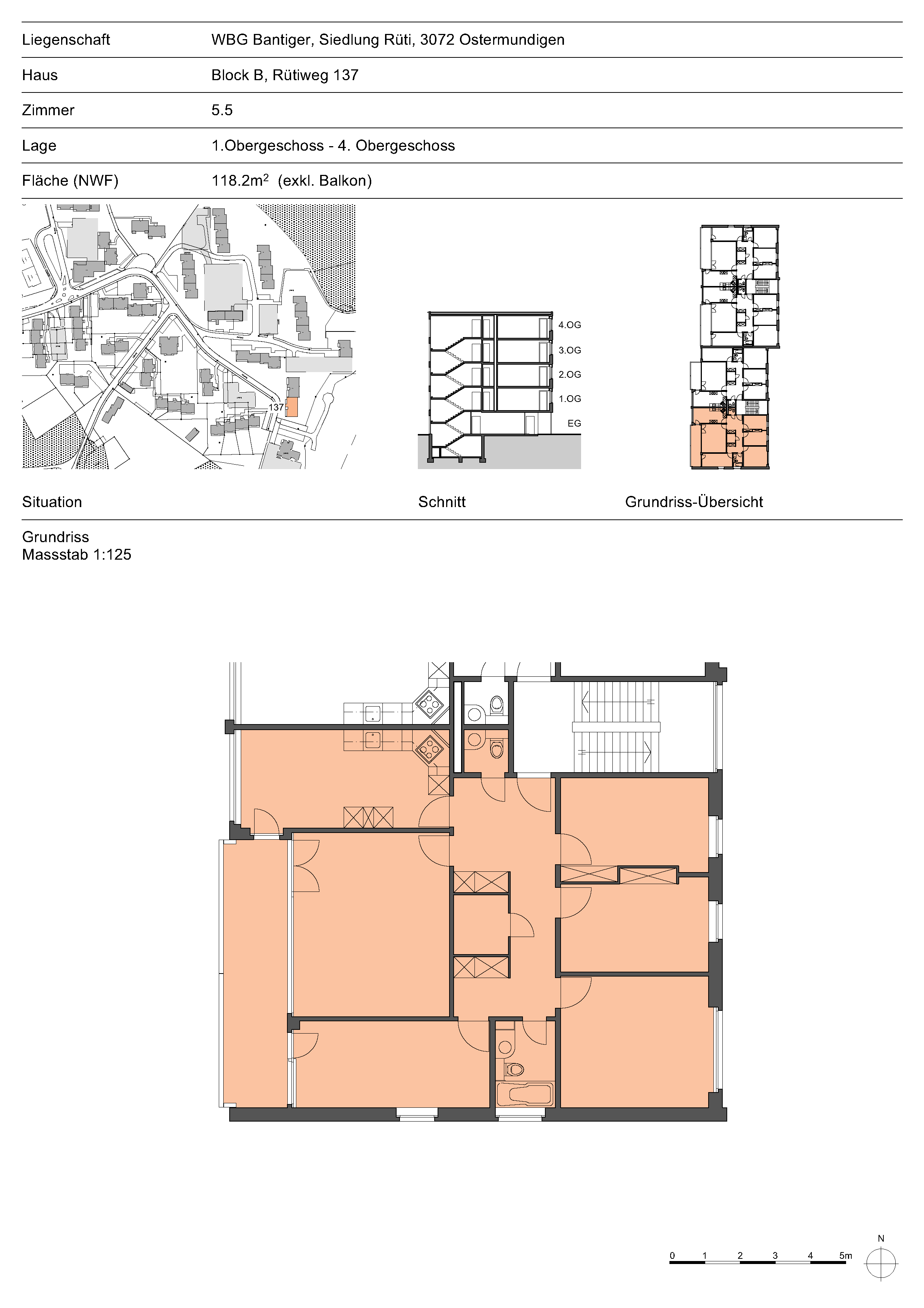
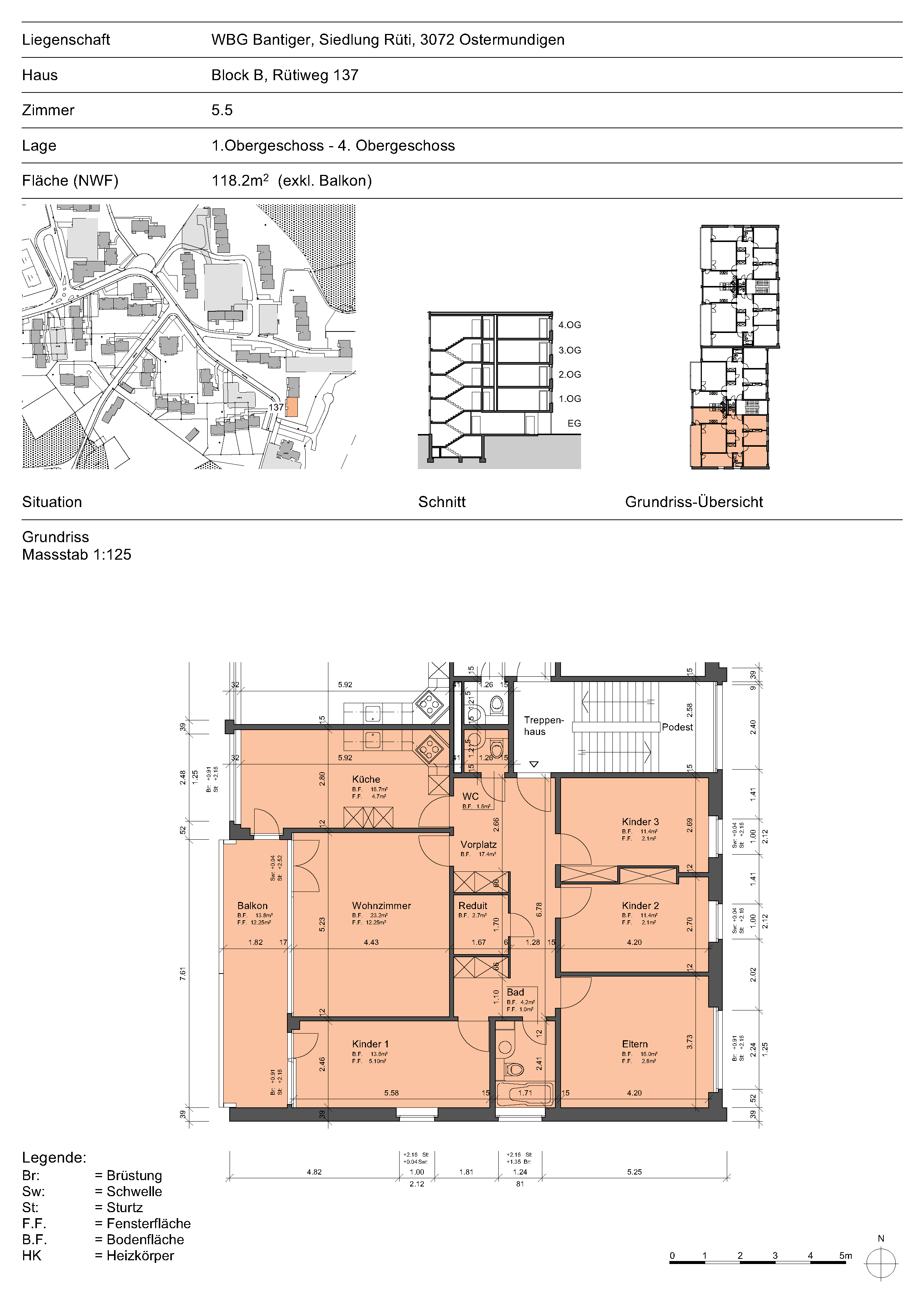
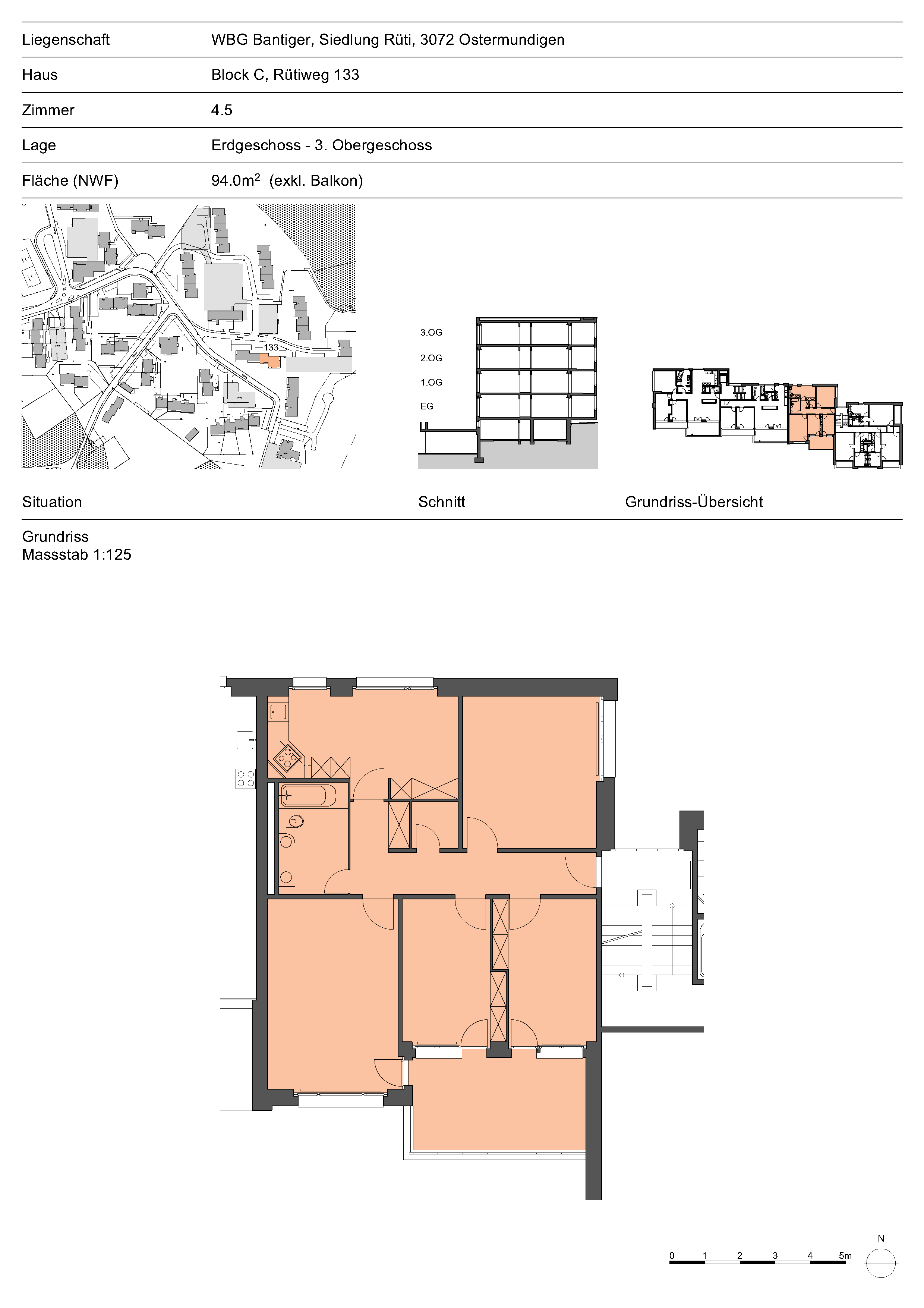
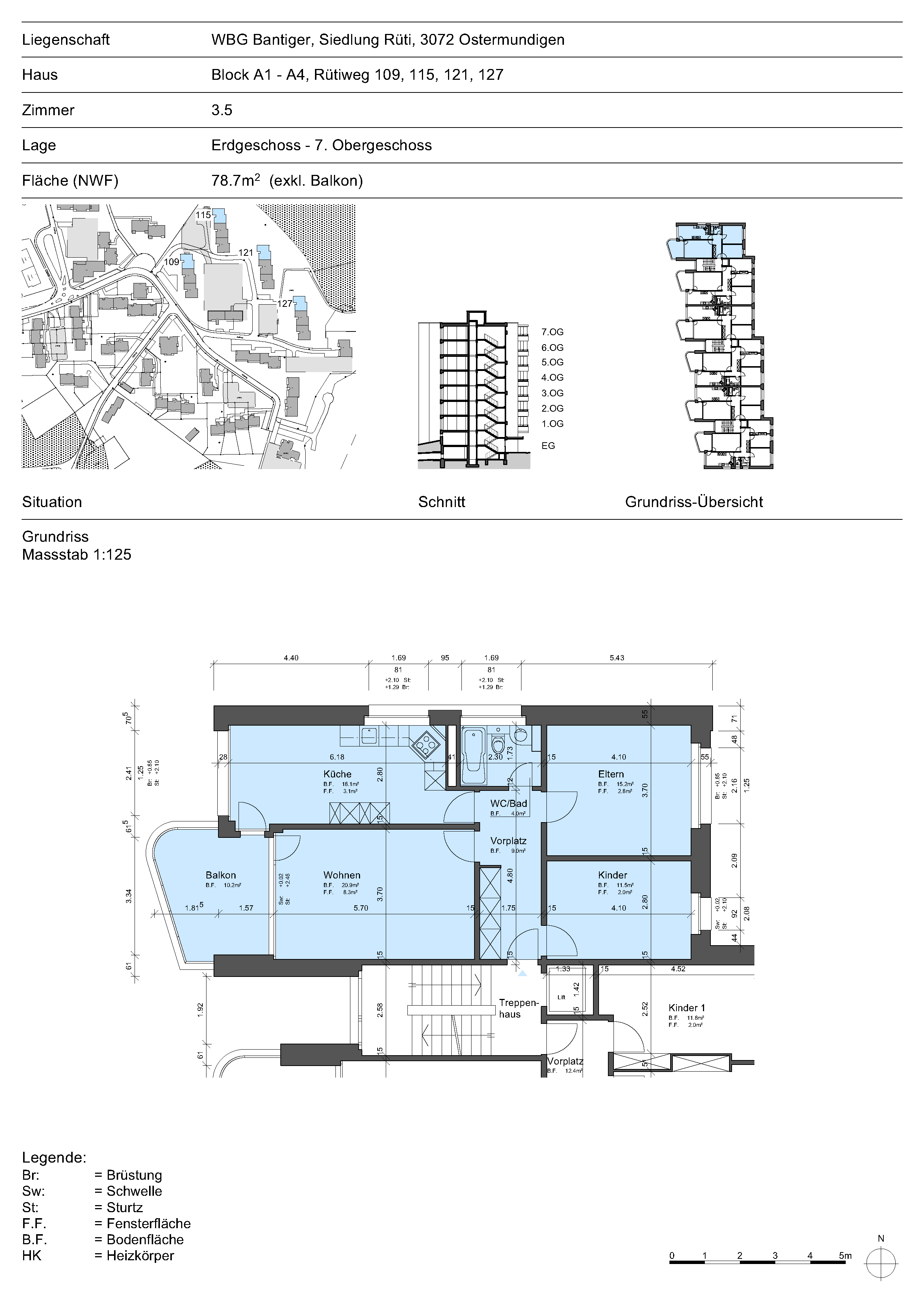
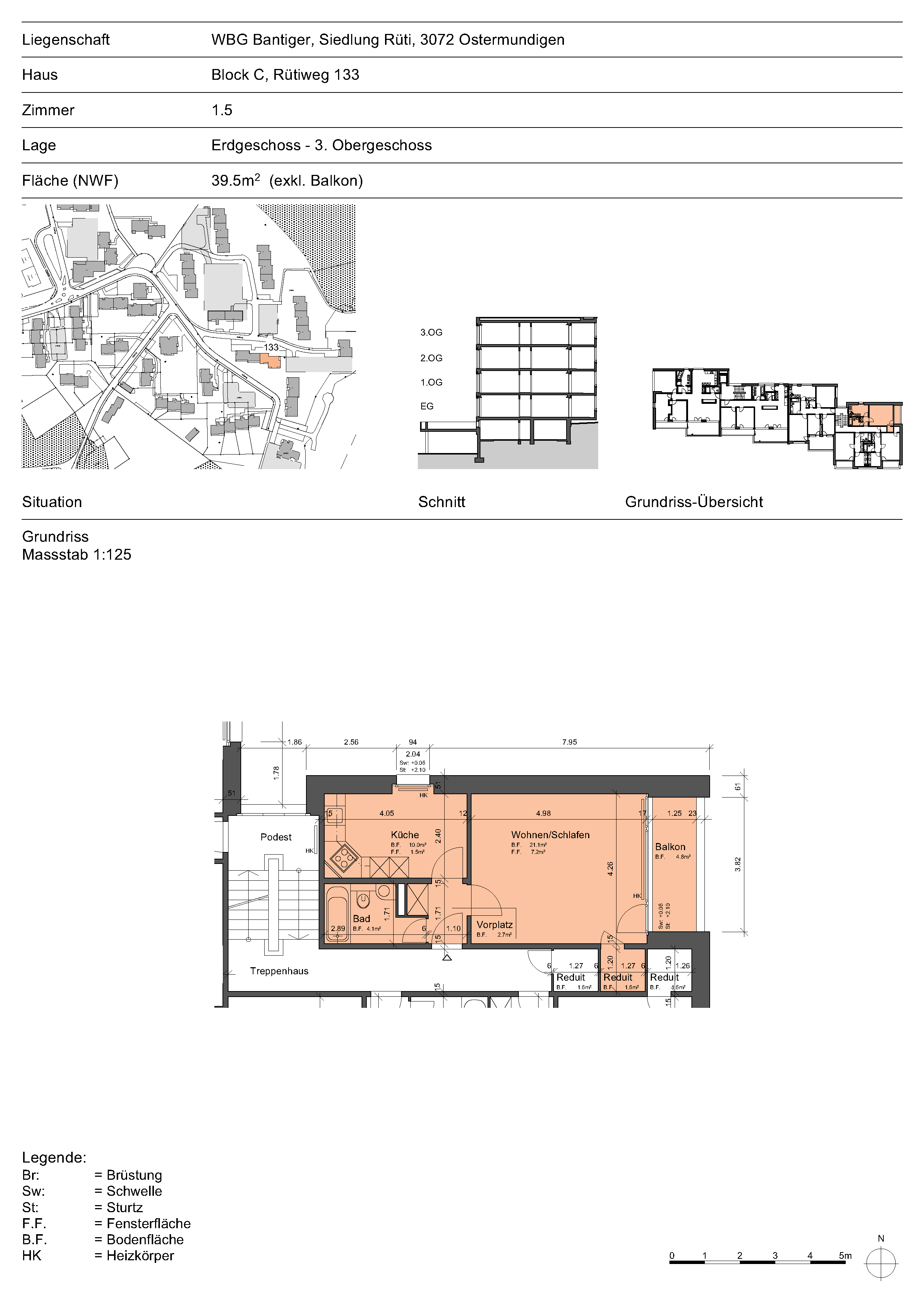
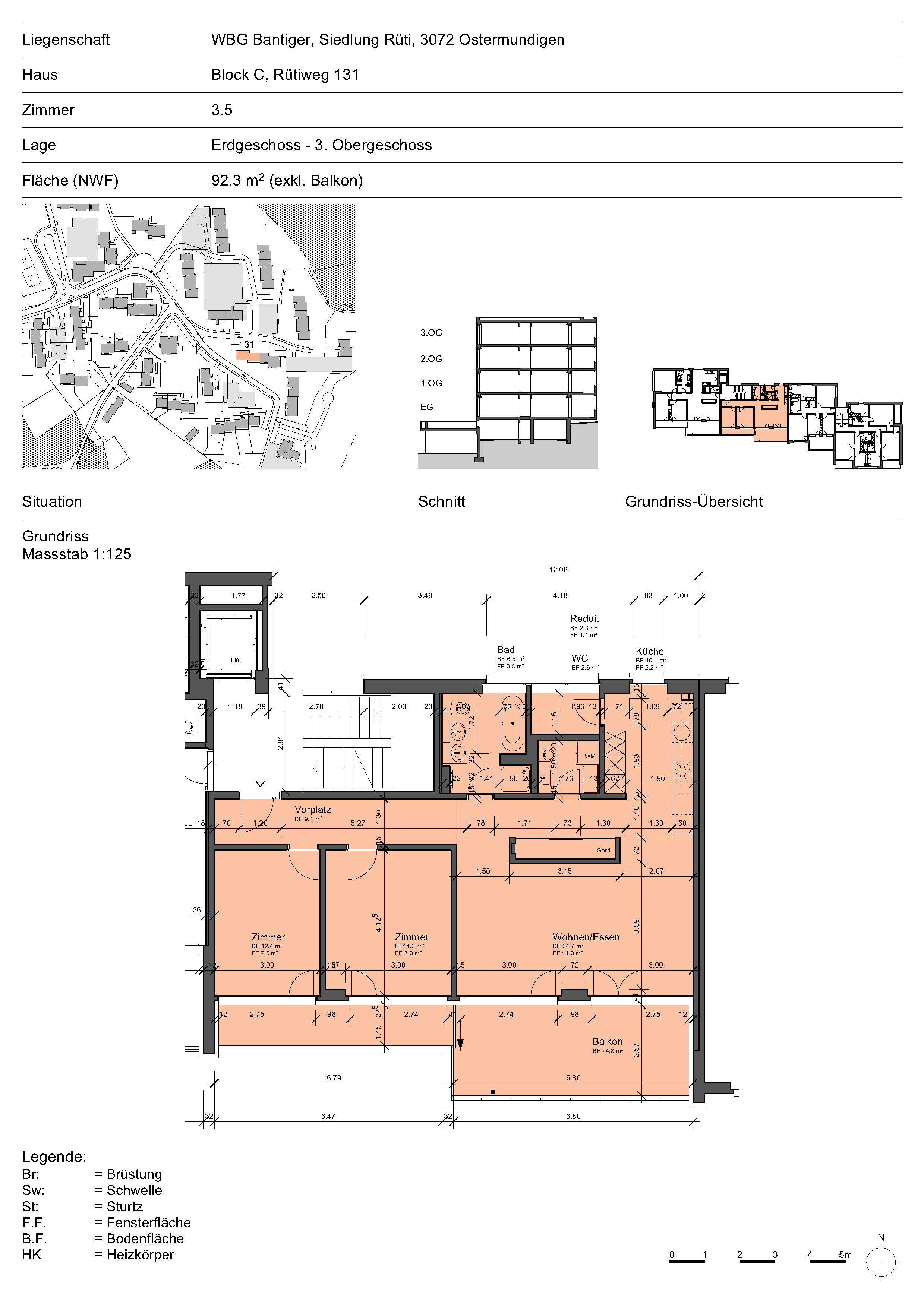
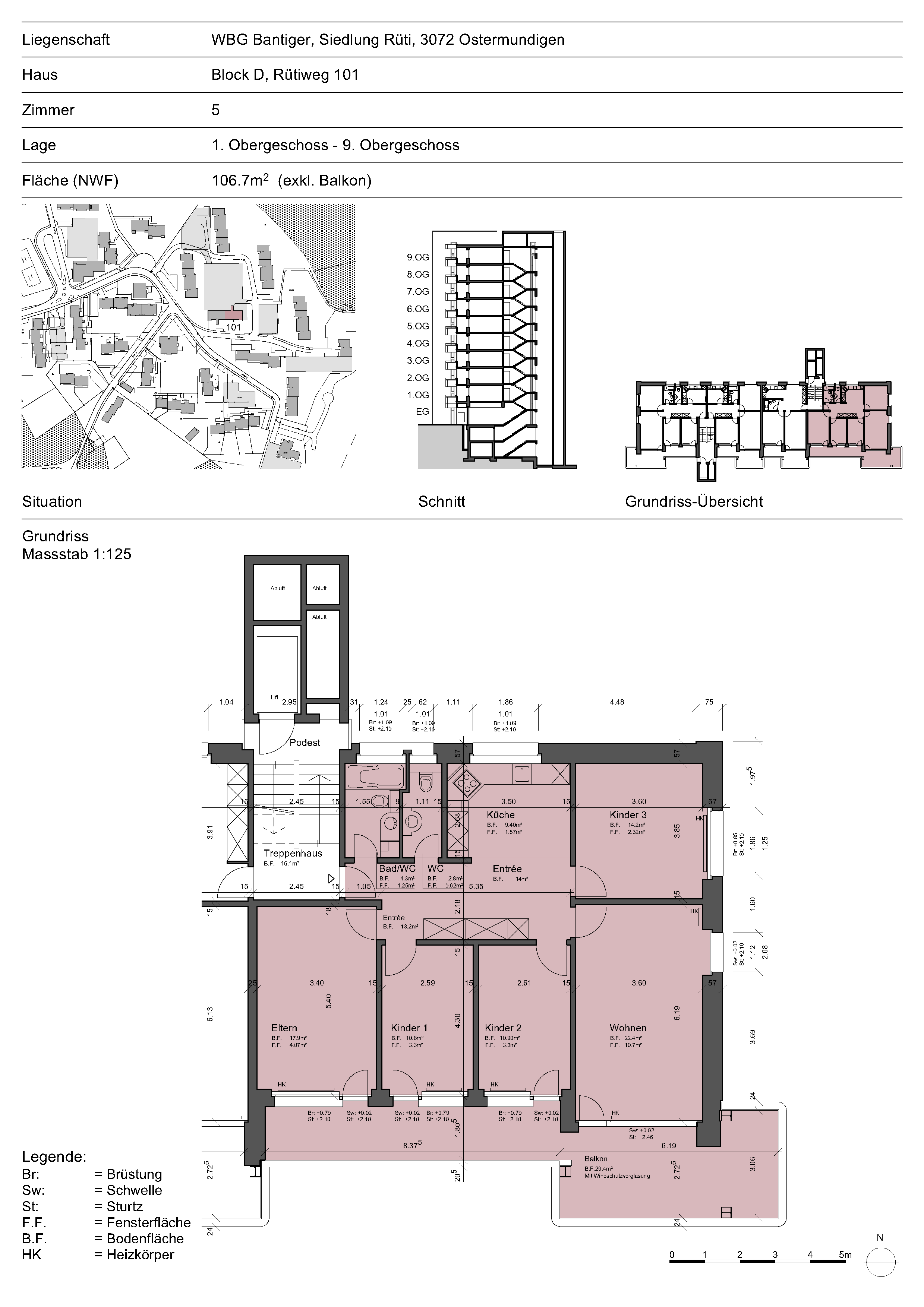
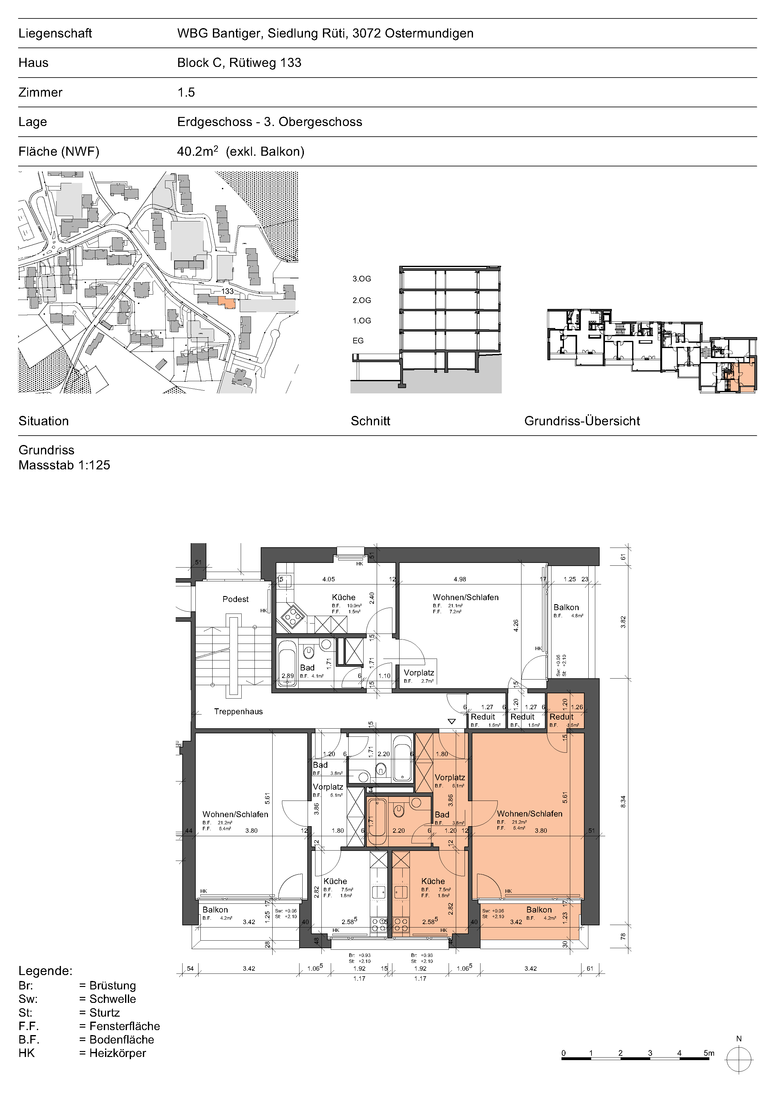
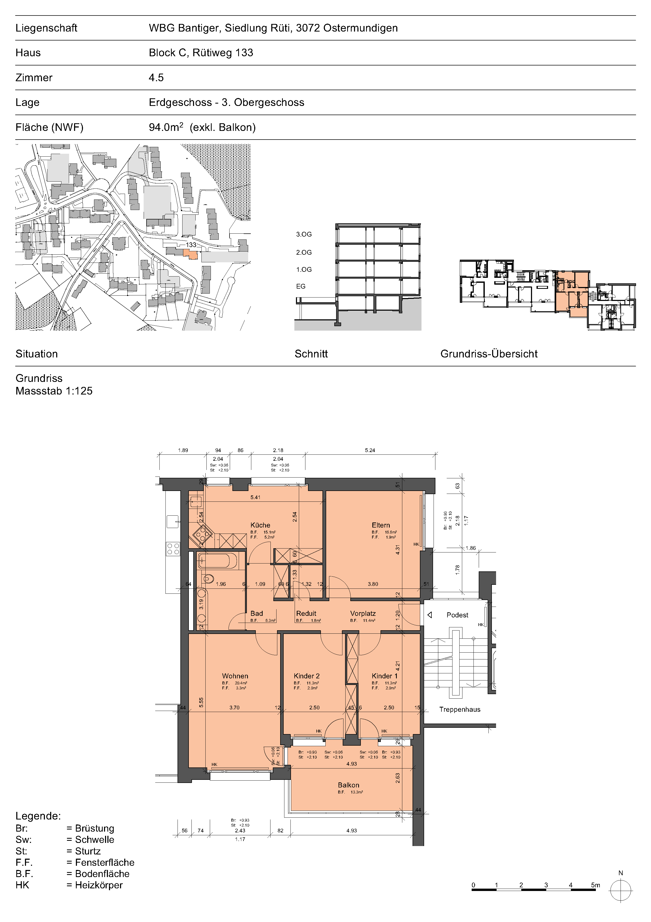
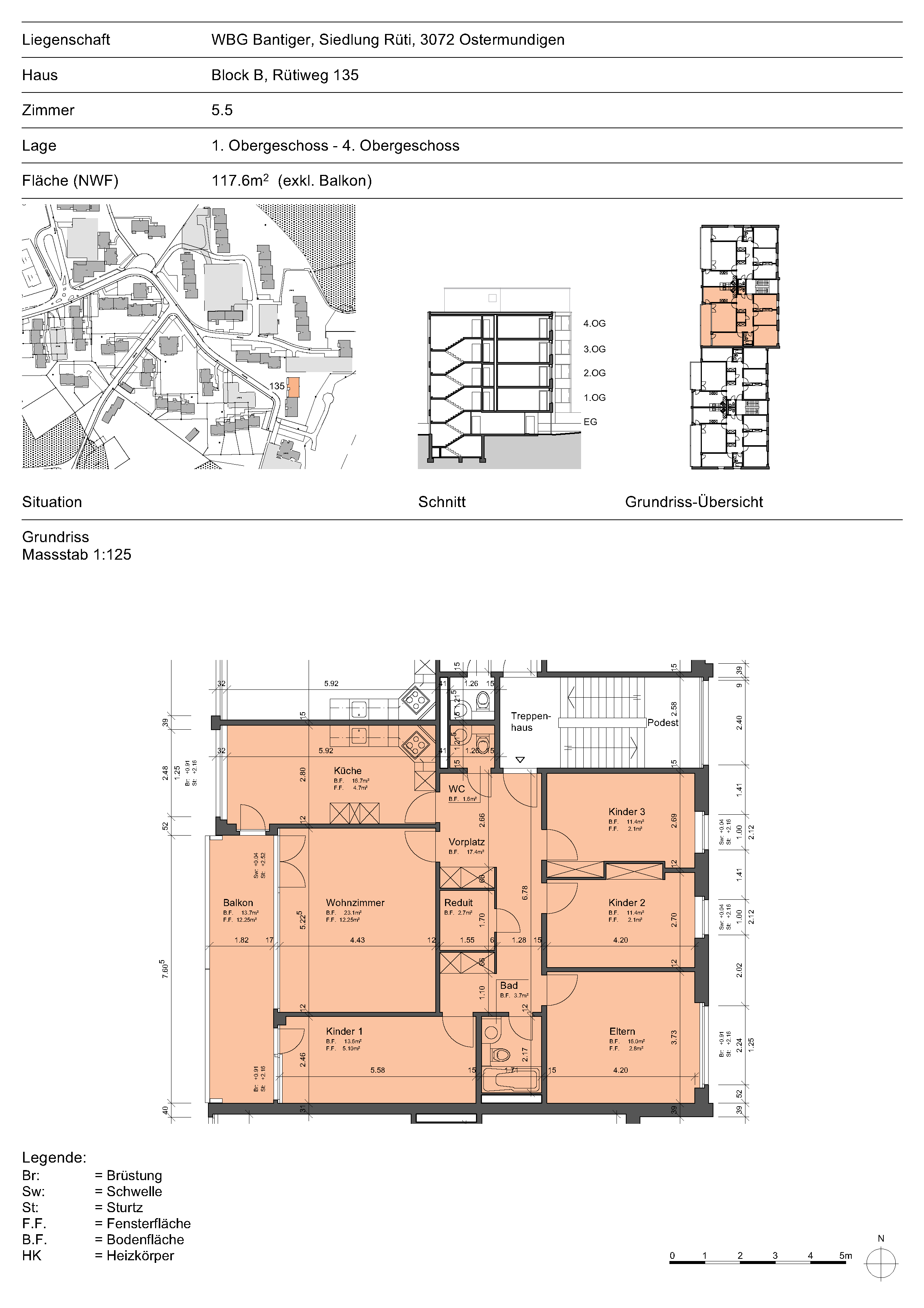
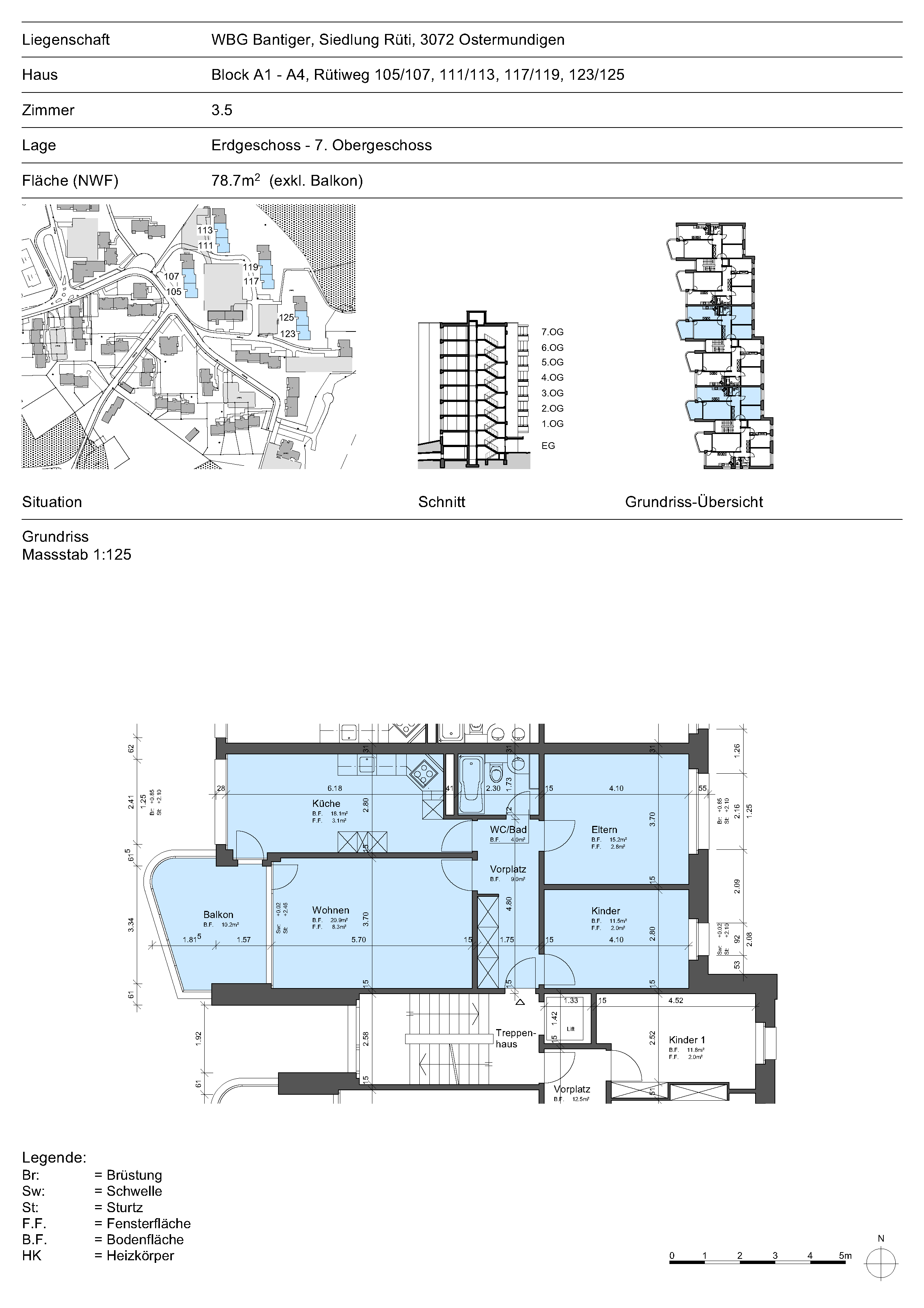
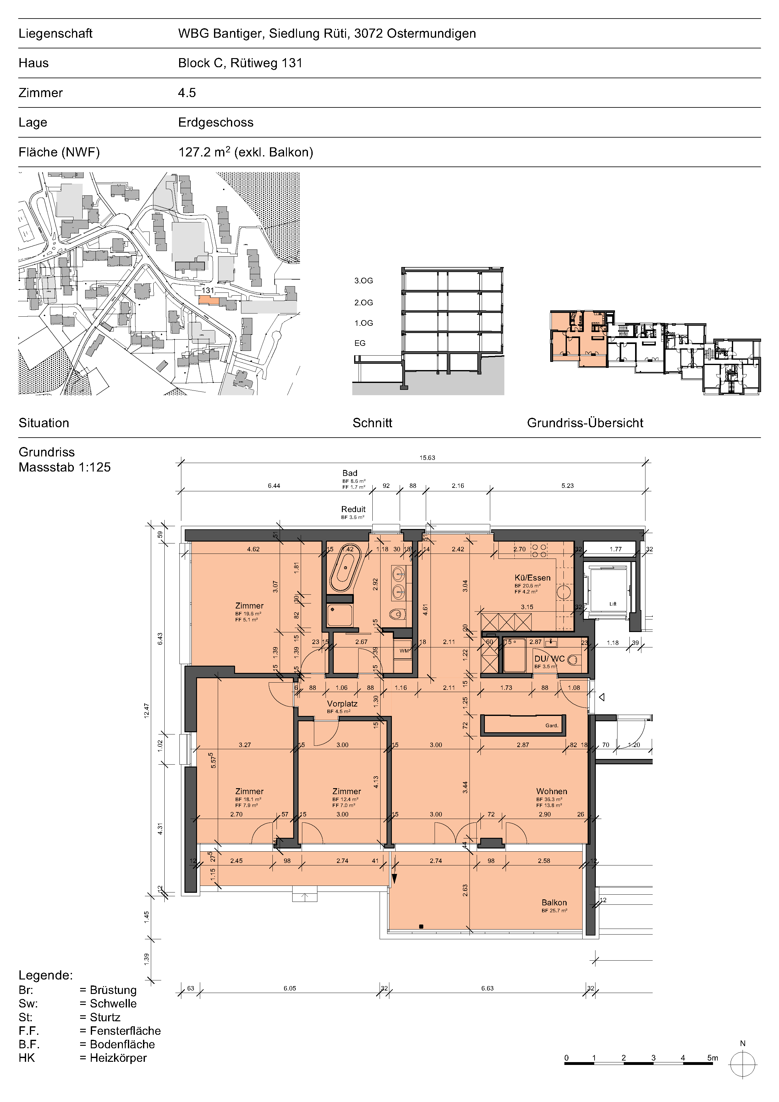
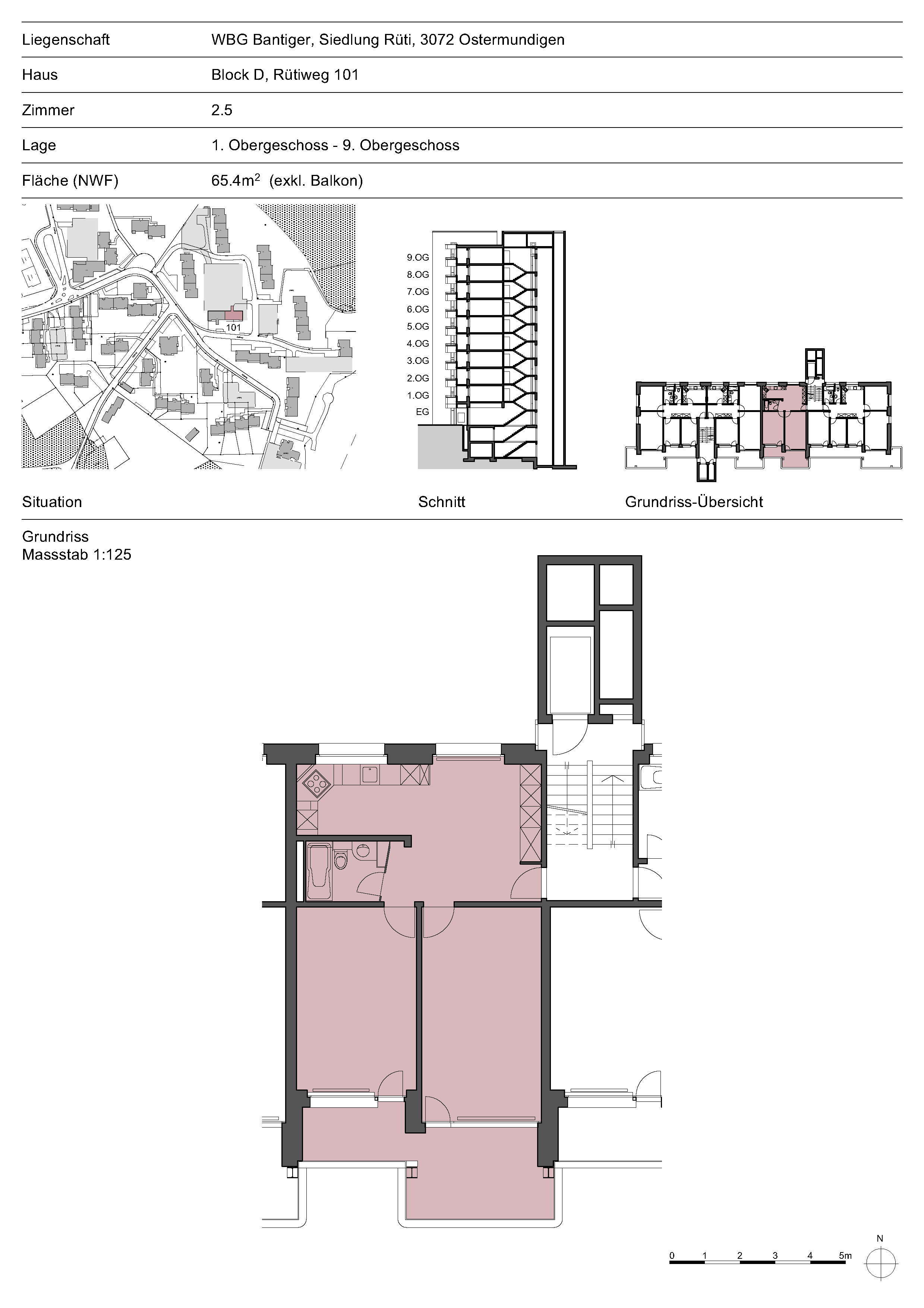
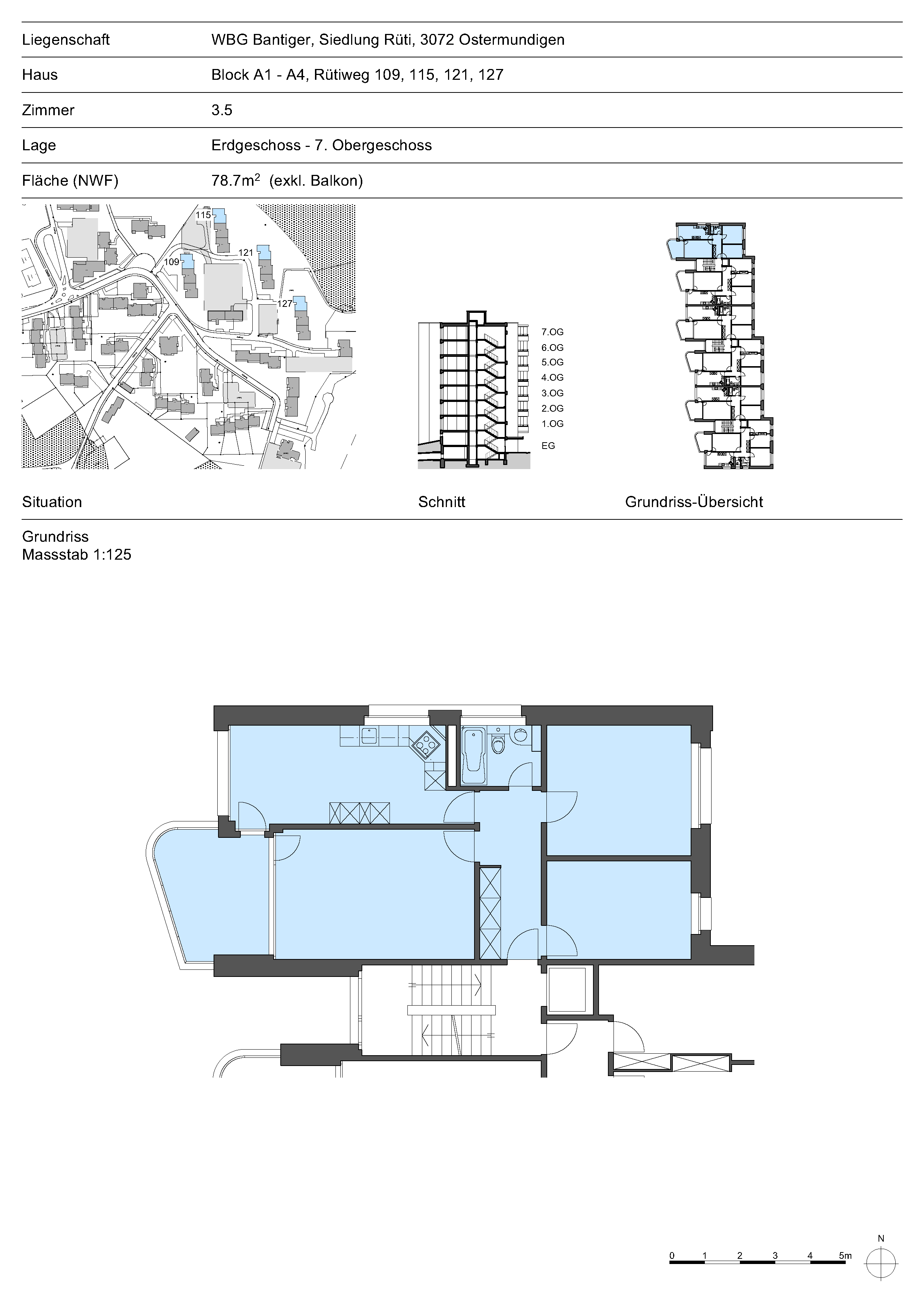
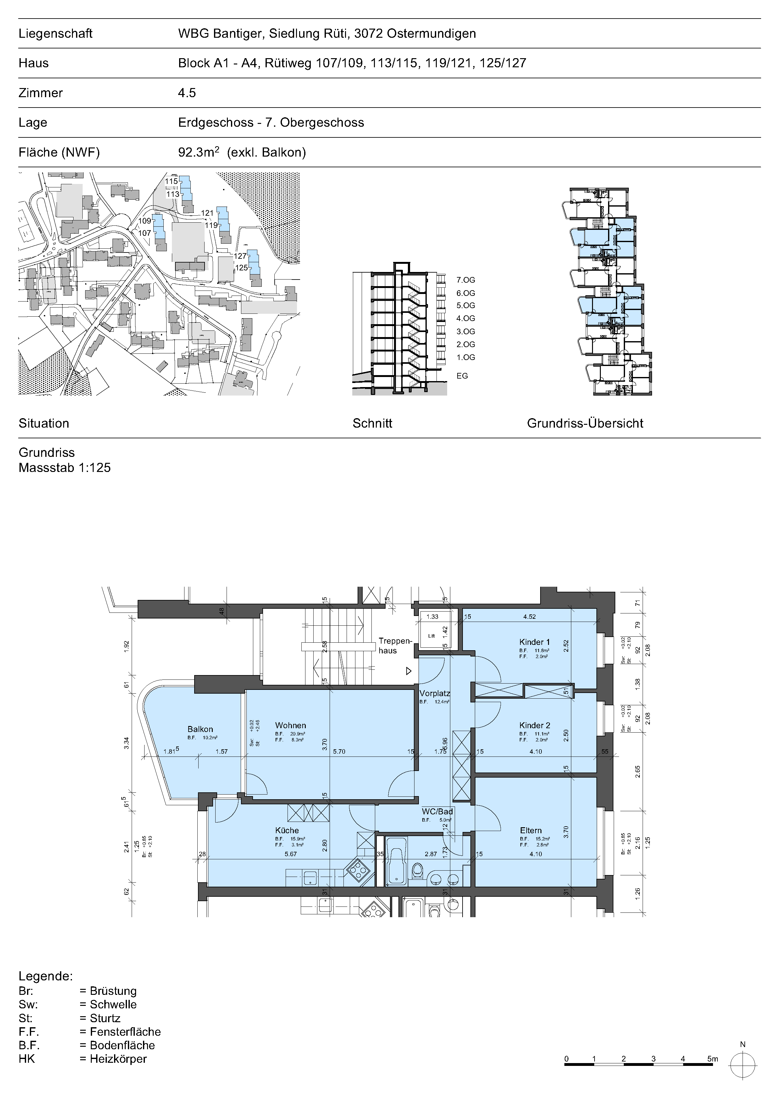
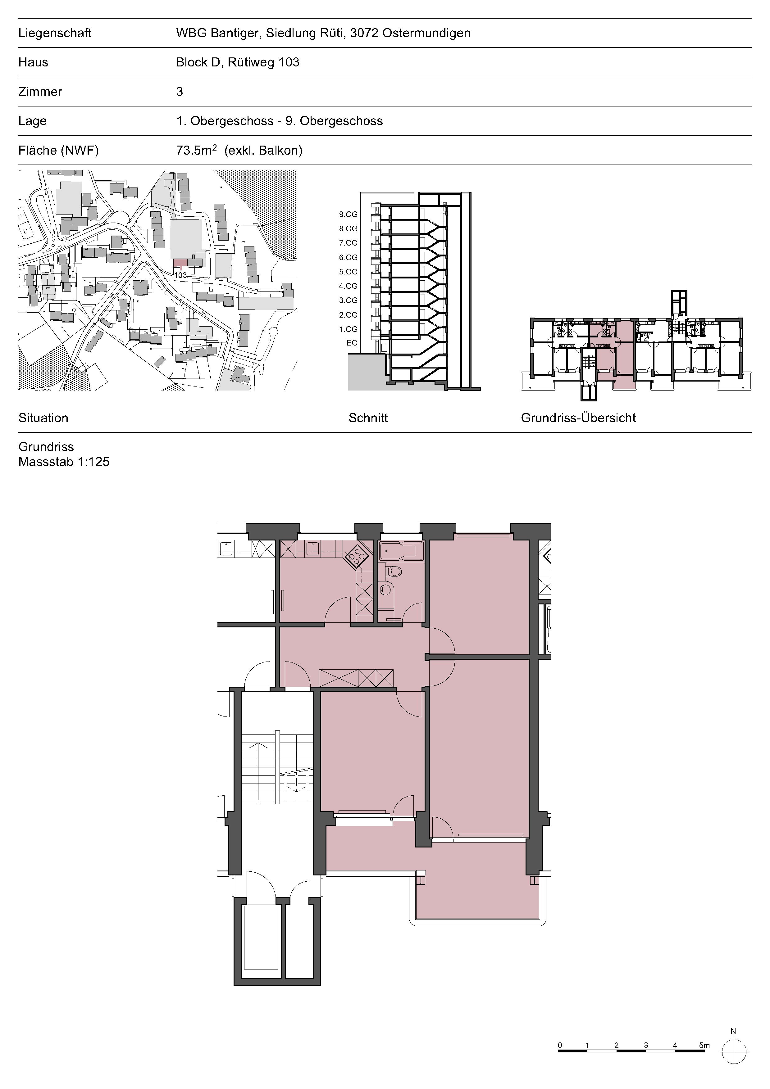
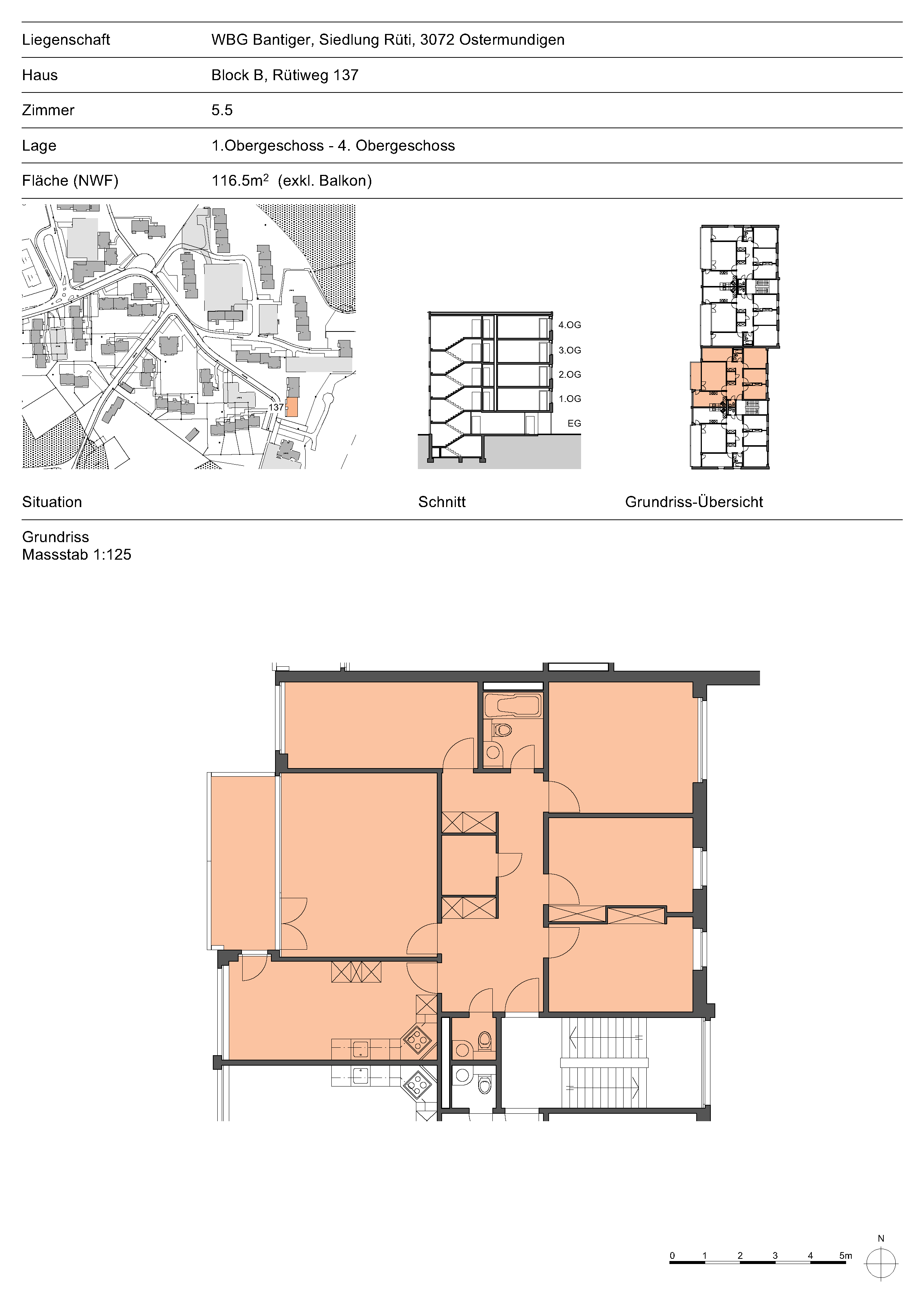
In den folgenden Abschnitten können Sie die Grundrisse (Pläne) der einzelnen Wohnungen ansehen und wenn gewünscht als PDF herunterladen:
EINSTELLHALLENPLATZ
Auto: CHF 120.-
Motorrad: CHF 20.-
UNTERSTELLPLATZ
Auto: CHF 90.-
OFFENPLATZ
Auto: CHF 50.-